
Una escultórica vivienda revestida de mármol travertino rojo es la protagonista hoy en este blog.


Prismas maclados y capas que se doblegan como pieles superpuestas definen esta residencia inspirada en la obra de Chillida.








Se trata de una edificación de 1.437,49m2 situada a las afueras de Madrid en una amplia parcela con una pendiente media que se ha aprovechado para organizar la construcción en tres alturas e integrarla lo mejor posible en el entorno.
ALZADOS

Buscando esta integración de la construcción con el paisaje natural que la rodea, se plantea una cubierta ajardinadaque entremezcle con la arboleda.




En planta inferior de la vivienda se localiza el garaje, un vestíbulo-distribuidor, cuarto de juegos, piscina interior, vestuario de la piscina, bodega, trastero, cuarto del jardinero, aseo y tres cuartos de instalaciones.
SÓTANO

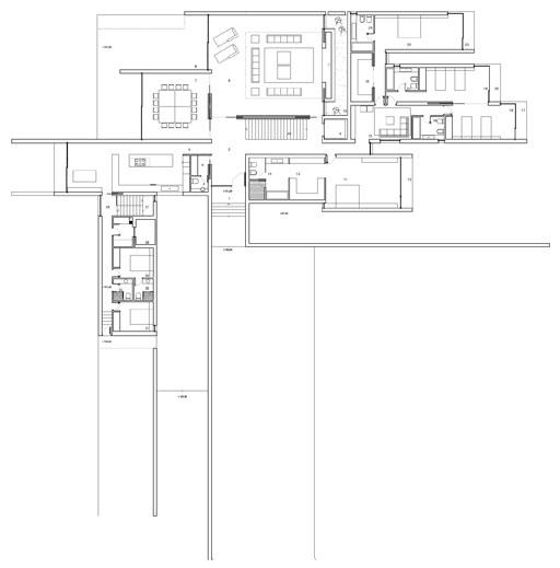
En la planta baja se distribuyen las siguientes estancias: porche de acceso, recibidor, aseo, vestidor, salón, comedor, cuarto de estar , cocina, cuatro dormitorios con sus correspondientes cuartos de baño, distribuidor de los dormitorios, garaje de exposición de motos y lavadero-tendedero.
PLANTA BAJA

Exteriormente los dormitorios se aprecian como una serie de cubos arquitectónicos que se suceden en línea.


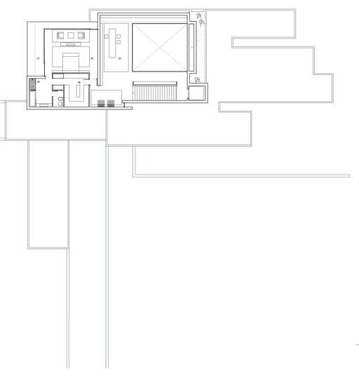
Finalmente, en la planta alta se encuentra un distribuidor, un despacho, la biblioteca, y el dormitorio principal con su cuarto de estar, vestidor y cuarto de baño.
PRIMERA PLANTA

Anexa a la vivienda de la propiedad, se localiza una edificación secundaria destinada al servicio que se compone de estar, distribuidor, cocina, dos dormitorios, un cuarto de baño, un aseo y un lavadero-tendedero.


