Tributo a las formas simples. La Estación de Bomberos de Dordrecht es un diseño del estudio René van Zuuk Architekten, situado sobre el borde de un campus educativo. El edificio contiene un programa compuesto por áreas de vida social, oficinas, garajes, talleres, un servicio de ambulancia y un Centro de Capacitación Regional.
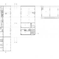
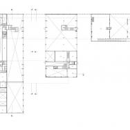
El terreno de forma triangular se encuentra entre una autopista y una escuela. Debido a una exigencia del plan urbano, el edificio debe alcanzar una altura mínima de 12 metros para servir como barrera acústica de los ruidos del tránsito a la escuela. El conjunto se dispone con 5 volúmenes, tres a nivel del suelo y dos por encima de estos en forma perpendicular.

Los tres volúmenes de planta baja alojan los talleres y garajes separados entre sí por dos calles que permiten acceder a los vehículos. De esta forma, cada volumen genera sobre el interior de la calle una larga fachada que permite colocar puertas de distintas dimensiones que responden a las características de los vehículos que forman parte del parque automotor.
Por encima de estos prismas, se colocan otros dos volúmenes de análogos en forma perpendicular, uno paralelo a la autopista de un solo nivel contiene los talleres menores y otro en el lado opuesto de dos niveles que aloja las oficinas administrativas y las áreas necesarias para la vida social de los integrantes de la delegación.
La forma simple del conjunto se corresponde con la austeridad en elección de los materiales componentes de las superficies exteriores. Todas las envolventes fueron reducidas al uso de aluminio perforado y cristal tonalizado en verde. La planta baja combina policarbonatos y paneles oscuros para establecer una dosificación equilibrada de la iluminación. Los locales del primer piso están revestidos por láminas perforadas de aluminio, que permiten obtener privacidad sin limitar el paso de luz. El segundo piso es completamente transparente para proporcionar un entorno de trabajo luminoso y agradable.
Podrá decirse sobre este trabajo que remite a obras del movimiento moderno de mediados del siglo XX, utilizando tecnologías del siglo XXI. En tal sentido, el comentario no debería tomarse como un desmérito sino todo lo contrario, fortalece la idea de los autores quienes demuestran que sin utilizar formas tortuosas y extraños plegados, se puede hacer muy buena arquitectura.






English version
DORDRECHT FIREHOUSE
By Marcelo Gardinetti | february 2013
Tribute to simple forms. The Fire Station Dordrecht is a design study Zuuk René van Architekten, located on the edge of an educational campus. The building contains a program consisting of areas of social life, offices, garages, workshops, an ambulance service and a Regional Training Center.
The terrain is triangular and lies between a motorway and a school, and a requirement of the urban plan, should have a minimum height of 12 meters to serve as an acoustic barrier of the noises of traffic to school. The design is constructed starting from 5 volumes, three at floor level and two above these perpendicularly.
The three volumes of ground floor are intended workshops and garages, separated from each other to create two streets that provide access to vehicles and generate a long facade to place doors of different sizes that respond to the characteristics of the vehicles that are part of the fleet of the fire department.
Above these prisms are placed two volumes perpendicular form similar characteristics, one of a single level parallel to the motorway, which contains smaller workshops and other of two levels which houses the administrative offices and the areas necessary for social life of the members of the delegation.
Simple forms of the volumes correspond to the austerity in choice of materials that compose the outer surface reduced the use of perforated aluminum and green tinted glass. The ground floor combines polycarbonate and dark panels for an even spread of illumination, the premises of the first floor are clad by perforated aluminum plates, which allow for privacy without limiting the passage of light, and the second floor is completely transparent to provide a working environment bright and friendly.
Can say this work refers to works of the modern movement of the mid-twentieth century, using technologies of XXI century. In this regard, the comments should not be taken as a demerit quite the contrary strengthens the idea of authors who show that without using tortuous forms and strange folded, they can do very good architecture.






.
Fotografía: ©Christian Richters
