Sobre teorías del color hay mucho (muchísimo) escrito. De hecho en la conferencia que os comento, la artista explicaba su propia teoría de color y cómo la aplicaba en sus obras. Pero como en muchas cosas toda teoría es discutible. La percepción del color, y por tanto de las sensaciones que nos dan, depende mucho de la experiencia de usuario. Los colores no “significan” lo mismo para todos. Por eso arriesgar con los colores siempre da un poco de “miedo escénico”.
En el post de hoy os enseñaré el estudio propio de Brijuni Arquitectos. Un espacio en el que se ha sabido combinar color y rehabilitación, de una forma, a mi parecer, muy acertada. 
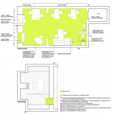
Los vidrios de seguridad utilizados evitan el feísmo provocado por los tradicionales elementos de cierre y permite el uso de carpinterías de madera blancas, que unifican el aspecto exterior con las carpinterías de los pisos superiores.

En el interior, se han querido dejar a la vista todos los elementos originales del espacio a los cuales se les han dado tratamientos de protección. Solamente en los muros más deteriorados se han colocado paneles de pladur blanco hasta la altura de acción de usuario.

El techo, también en mal estado, se ha ocultado con un falso techo que sirve a la vez para alijar el cableado de iluminación.




Bajando las escaleras, no encontramos con un sótano abovedado en el que se encuentra la sala de reuniones. La bóveda cuenta con la intervención gráfica del artista Jack Babiloni, con una obra titulada “Brijuni es un paisaje mental”. Al fondo armario de almacenaje con puerta correderas de metacrilato retroiluminado. Los muros de este espacio han sido enfoscados por culpa de las humedades que tenían.


