
Hoy os presentamos la continuación del proyecto de A-cero, que publicamos la semana pasada, que dadas sus dimensiones lo iremos publicando cada miércoles.
Se trata de una serie de viviendas unifamiliares situadas en una exclusiva urbanización en el norte de Madrid.
La parcela nombrada como parcela C, adopta la forma de un polígono irregular y comprende una superficie de 2.500m2.
A requerimiento de la propiedad se desarrolla el proyecto de una vivienda unifamiliar, en la mencionada parcela, desarrollada en varios niveles que se adaptan a la topografía existente.
Se ha buscado con la propuesta el perfecto funcionamiento de la vivienda en relación a las necesidades de la propiedad.
La vivienda se divide en dos zonas claramente diferenciadas; una zona de día, con estancias para la relación como salón, comedor, cocina y piscina exterior y una zona de noche con dormitorios y estancias complementarias como vestidores y cuartos de baño.

ALZADO I

ALZADO II

PLANTA SÓTANO
En planta sótano, se sitúan trasteros , zonas de servicio (lavandería, aperos de jardín, cuarto de plancha, cuarto lavandería, despensa, cuarto de limpieza, cámara de frío, cámara acorazada) , instalaciones , discoteca con bodega, sala de masajes y aseos para servir a estos espacios, con una superfice de 450m2.

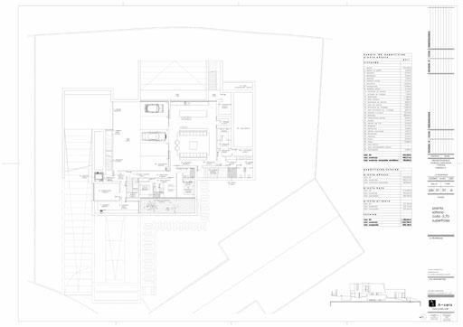
PLANTA BAJA
Este nivel, tiene una superficie total de 205m2, que junto a los porches suman 556m2.

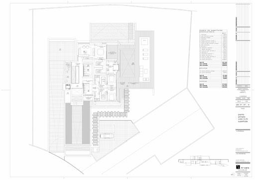
PRIMERA PLANTA
Este nivel, tiene una superficie total de 253m2.

PLANTA CUBIERTA

CROQUIS

EXTERIORES
El acceso se sitúa en la planta baja. Esta planta se ocupa con las estancias de día como cocina, estar-comedor, salón y zonas de servicio y circulación tales como aseo de cortesía ropero y vestíbulos. Asimismo se completa la zona de día con una piscina exterior vinculada a la zona de salón y comedor.

En la planta primera se disponen las zonas de noche (dos dormitorios, dos baños, dos vestidores y zona de estar). En esta misma planta se distribuye el dormitorio principal que cuenta con dos vestidores, cuarto de baño y zona de estar.


PORCHE

