Obra original, inesperada, que combina el espacio de una casa contemporánea en dos plantas con salón de exposición para una colección privada de autos y motos.
vieja fábrica
conservar sus perfiles
aspecto de edificación industrial

Vista del frente de la casa desde el patio
sector de la casa
Vista de la casa en la entrada desde la calle

Vista del conjunto desde una terraza vecina

Largo galpón en donde se guardan los automóviles y motos de colección

Detalle del ángulo entre el sector de la casa y el gran salón de exposición
Sector de la casa en la planta baja donde se despliega la sala de estar
forma de LÁngulo donde se encuentra un muro nuevo y otro heredado de la vieja fábrica
El diseño es preciso al definir las características de la transformación, produce un espacio cuidadosamente organizado en el cual el área de la gran sala se desarrolla en doble altura, y la zona de exhibición está muy próxima, vinculada, pero ambas diferenciadas.
Sector de la cocina diseño minimalista en la planta baja

Vista desde la sala al patio con espacio para maniobrar vehículos

Vista de la sala con una moderna chimenea desde el sector de la cocina

Dormitorio de la casa en la planta superior en el cuerpo de la nave del salón
Un sector en el gran salón para exponer y guardar los vehículos
La altura de los volúmenes brindaron espacio para el diseño de áreas en distintas direcciones. El área que hace el vínculo entre la casa y el salón incluye un bloque compacto con luz cenital, una estructura que crea una casa dentro de la casa, y da espacio para cuartos de uso utilitario, dormitorios, en la planta alta.Pasillo lateral en la nave
La geometría es nítida y precisa. Hay contraste de las paredes de obra seca (dry wall) con el ladrillo expuesto de la vieja pared que ha quedado en el perímetro de la propiedad.
Sector en desnivel da a un patio pequeño cerrado
La doble altura de la sala de estar creó un lugar muy espacioso con una gran chimenea. Domina el ala este del complejo y se destaca en el patio.Planos de alzada del conjunto
El área de exhibición es también un espacio de doble altura, tanto en el sector donde se ubican los autos como en el corredor angosto con un nivel elevado a lo largo del muro norte para exponer las motos.
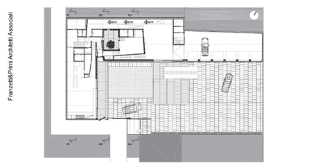
Plano de la planta baja

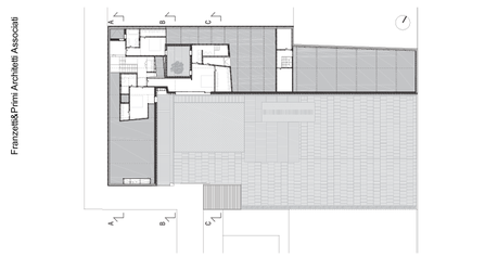
Plano de la planta alta del sector de la residencia
La elevación exterior y el techo están construidos de diferentes materiales, así se definen sectores y colores. Chapas de zinc titanio desgastado cierran la parte exterior del techo, mientras que por debajo los tirantes y piezas metálicas de la estructura del cielorraso está a la vista en la sala de exhibición para los vehículos, esto provee de un elemento de continuidad con la estructura industrial original.La sección nueva está dividida en dos sectores. Bloques de concreto con un patrón de vainillas logra un vibrante y dinámico efecto tipo textil, impresión creada en el espacio entre los elementos modulares.
Abajo en las fachadas se aplicó madera estratificada de alta densidad, este material crea una secuencia de tonos cálidos que combina perfectamente con las puertas y ventanas de madera, también armoniza con el piso de roble en el interior. Esta residencia se completó en el año 2012 y cubre en total unos 750 m2.
Obra de Aldo Franzetti y Micaela Primi, jóvenes arquitectos dedicados a la arquitectura residencial, su estudio es Franzetti&Primi Architetti Associati, no hay información de dirección de un sitio en Internet. Fotos de Maurizio Montagna. Via www.theplan.it
En el mapa satelital a continuación usted puede explorar la provincia de Varese en Italia, hay zoom, fotos y street views.
Revise la lista de entradas sobre obras de reciclado arquitectónico, siga este enlace.
Por favor, deje su opinión por escrito al pie. Agregue este blog de arquitectura de casas a su lista de Favoritos. Para estar al día con lo publicado ingrese su dirección de correo electrónico en la ventana de la barra lateral. Más abajo hay una simple y breve encuesta muy fácil de responder, sirve para orientar la edición y publicación de los contenidos según su motivación e intereses. Gracias por participar.





