
Hoy os mostramos uno de los proyectos de reforma realizados por A-cero: la transformación de un antiguo inmueble del centro de Madrid en un edificio escultórico destinado a la venta de mobiliario y decoración del hogar de primeras marcas.

Se trata de una edificación de 5 plantas (dos bajo rasante) con una superficie de 348,64m2 que limita por todas sus caras con bloques colindantes de viviendas, excepto por el sur que da al Paseo de La Habana.




La intervención de A-cero se centra en la demolición de todas las particiones interiores y el completo desmontaje de la fachada existente para crear un gran escaparate que recorra la construcción.

De esta forma, desde el exterior se perciben visualmente los distintos niveles al vez que se observan como forman parte de un mismo conjunto.
En el interior se pretende conseguir un espacio coherente con lo proyectado exteriormente.

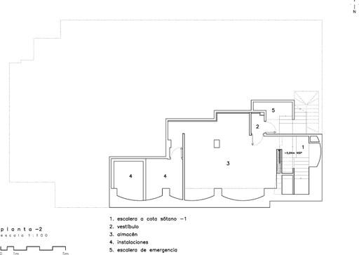
Las plantas bajo rasante se dedican a uso privado. El primer sótano alberga un espacio de administración y diseño (vinculado al área de venta) con un pequeño aseo para el personal. El sótano -2 incluye una zona de almacenamiento e instalaciones.


Los tres niveles superiores (dedicados a la exposición de los productos) acentúan el criterio de austeridad que domina en toda la actuación, ya que son espacios totalmente diáfanos sin apenas diferencias entre ellos, a excepción del área de recepción en la planta baja y los aseos instalados en el segundo nivel.


La escalera asume un papel escultórico en el interior de la edificación y reproduce las volumetrías de la fachada en un paño de color rojo que se extiende hasta la última altura de la construcción.



Buscando dinamismo, riqueza espacial y pureza volumétrica, las soluciones constructivas adoptadas en este proyecto son consecuentes con stos objetivos y, para ello, se eliminan todos los elementos que puedan distraer de la percepción directa del espacio (zócalos, tapajuntas, tiradores… ).

Asimismo, este propósito se refuerza con la hegemonía cromática gris presente en los acabados de todas las paredes, suelos y techos.

La fachada está compuesta por volúmenes realizados de una estructura metálica (revestida de composites de alucoil color gris oscuro) que al mismo tiempo funciona como escaparate de vidrio.

Se ha optado por unos acabados de aspecto puro. El pavimento empleado en todas las plantas y en la escalera es un hormigón pulido rematado en las contrahuellas con chapa de acero brillo.

Respecto a la iluminación se ha optado por hacer foseados para ocultar los carriles electrificados de focos de iguzzini y conseguir el máximo partido de los mismos, según las necesidades de exposición.

En la última planta existen dos terrazas longitudinales, cuyos pavimentos están hechos de madera de ipé con tratamiento antihumedad.

Con este trabajo, A-cero ha querido huir de la idea convencional de local comercial para crear un lugar neutral en el que el producto a vender sea el protagonista de un escenario propio, sobrio, austero y elegante.

