
El estudio de arquitectura de A-cero presenta un nuevo hotel A-cero Tech que estará ubicado a las afueras de Madrid. Consta de una superficie total de 4.800m2, con 5 niveles, planta baja, primera, segunda, tercera y cubierta.
ALZADO FRONTAL

ALZADOS LATERAL

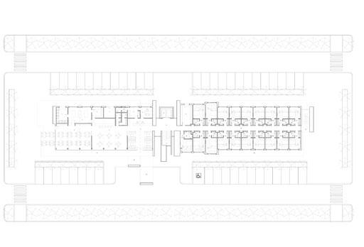
PLANTA BAJA OPCIÓN CAFETERIA
Este nivel se ditribuye en su totalidad a lo largo de 1.290m2. En él se sitúan la zona de servicio de 390m2, con la recepción, aseos del personal, cafetería, oficinas, comedor, despacho, almacén y cuarto de basuras. Un conjunto de 19 habitaciones se ubican en esta planta con una superficie de entre 18 y 14m2, más el baño.

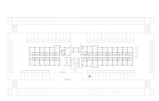
PLANTA BAJA
Este nivel a diferencia del anterior se basa en la ausencia de la cafetería, por lo que se aprovecha el espacio para ubicar un mayor número de habitaciones. Consta de una zona de servicio de 107m2, en la que se sitúa la recepción, oficina, aseos, lavandería y aseos. En la zona de las habitaciones se diseñan 32 con unas superficies comprendidas entre los 15 y 18m2. En cuanto a exteriores, se construye un porche peatonal, uno de servicio, otro para los vehículos y uno que dará servicio a las distintas habitaciones.
Todo ello a lo largo de 1.300m2.

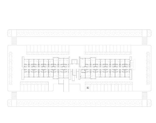
PLANTA PRIMERA
Este nivel cuenta con una superficie total de 1.052m2. En este se encuentra la zona de circulación con vestíbulo y escalera, zona de las habitaciones con un total de 37, de entre 18 y 14m2, y una lavandería de 22m2.

PLANTA SEGUNDA
Este nivel cuenta con 1.050 m2, una zona de 37 habitaciones de entre 15 y 18m2, mas una lavandería de 21m2, con zona de circulación (escaleras y vestíbulo).

PLANTA TERCERA
En esta planta se encuentran 2 terrazas en un total de 1.200m2.

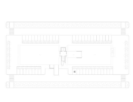
PLANTA CUBIERTA

PLANO DISTINTAS HABITACIONES


Diseño A-cero Tech, con materiales como el euronit y versalit combinado con el vidrio negro.


