Establecida sobre un terreno con una suave pendiente, que salva mediante una losa que se extiende horizontal sobre las ondulaciones de terreno, el Refugio São Chico se incorpora en la espesura del bosque sin alterar demasiado las características del sitio.

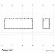
La vivienda está compuesta por dos volúmenes independientes unidos por una terraza actúa como nexo y elemento de expansión de la vivienda hacia el paisaje. Está construida con una estructura de perfiles, sobre los que se sujetan paneles de construcción en seco revestidos en chapa ondulada y madera, que interactúan para dar carácter a la envolvente. Una puerta de seguridad establece el ingreso formal a la vivienda y amplios planos de vidrio montados sobre una carpintería de aluminio permiten vivenciar el paisaje desde el interior.
“Situado en el centro de la parcela, rodeada de bosques, la casa gana una suave pendiente, inclinada sobre una losa de concreto armado del suelo a fin de no interferir con el perfil natural y salvarlo de la humedad ascendente. Su forma es simple: dos cajas rectangulares de diferentes texturas que se intersectan.






La caja mayor es revestida con teja ondulada metálica, abriga el sector íntimo con las dos suites dispuestas en lados opuestos. La segunda caja, en madera y más transparente, atraviesa el pabellón metálico configurando el sector social y de servicio. Al traspasar estos volúmenes, una cubierta de madera se proyecta sobre el bosque, atravesando el cuerpo principal de la casa realizando la función de acceso, hall de distribución y balcón.
La casa fue pensada a partir de una lógica estructural simple, con módulos de 1.20 x 1.20, estructurada por perfiles metálicos (“steel frame”) sobre la losa de hormigón armado. La composición de las paredes es propia del sistema constructivo: un sándwich formado por paneles de yeso, lana de roca, paneles de virutas de madera prensada y membrana permeable, aislando la estructura de la humedad.






Sólo el volumen de madera y revestimiento interno es el mismo del exterior. Complementado la estructura, una caja de bloques de concreto, semi-enterrados, conforma los cimientos que albergan el mayor desnivel de un pequeño depósito.” 1
Se accede desde el exterior mediante una rampa que salva la diferencia del terreno con la terraza, pero la amplitud de la parcela deja espacio para incorporar un autoelevador si fuera necesario.
El sistema de montaje industrializado, estructurado mediante elementos que se producen en fabrica y se trasladan al lugar para su montaje, elimina el uso de materiales tradicionales. Por sus características se facilita el traslado y acopio de los elementos componentes. Al no utilizar materia volátil que requiere una preparación in-situ, evitan la contaminación que supone este trabajo sobre el terreno natural y el paisaje existente, además de facilitar el proceso constructivo, que acorta los tiempos de obra con menor impacto ambiental.
Evitando una confrontación con la naturaleza, el proyecto de Studio Paralelo concreta una intervención sensible donde las necesidades del programa son resueltas con una convicción proyectual que permite disfrutar las bondades del medio natural sin perturbarlo.
©TECNNE 2019
Fotografías: © Eduardo Aigner
Dibujos: © Studio Paralelo
Artículo relacionado: Viviendas transportable
TECNNE | Arquitectura y contextos









Refugio São Chico, São Francisco de Paula, Rio Grande do Sul
Arquitectos: Studio Paralelo
Nota:
- Memoria descriptiva de los autores
