
El estudio de arquitectura A-cero, liderado por Joaquín Torres & Rafael Llamazares, presenta nuevas imágenes de obra del proyecto de reforma de local y diseño para la nueva Clínica Dental Ezedent del Dr. Daniel Balabanian, ubicada en León.
Clínica Dental Ezedent ha confiado en el estudio A-cero para dar una nueva imagen más dinámica e innovadora en su nueva clínica leonesa. A continuación os mostramos las imágenes del local antes y después del proyecto diseñado por el estudio.
ESTADO ACTUAL
ALZADOS Y SECCIONES

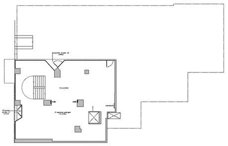
PLANTA BAJA
El local cuenta con una superficie total construida de más de 140m2 repartidos en una estancia principal y dos porches de acceso.

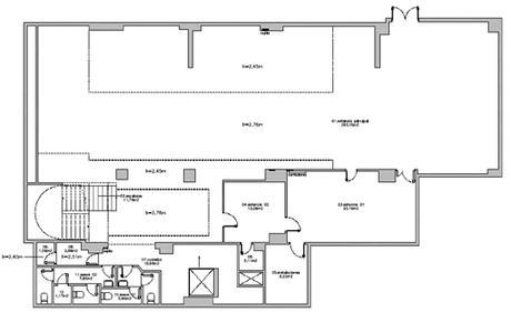
PLANTA SÓTANO
La planta sótano, con una superficie útil de 400 m2, cuenta con una amplia estancia principal, tres estancias secundarias, cuarto de instalaciones, almacén, corredor de acceso a ascensor y aseos, cocina y un segundo cuarto de instalaciones.

VISTA ESTADO PREVIO








ESTADO REFORMADO POR A-CERO
CROQUIS

ALZADOS Y SECCIONES

PLANTA BAJA
El acceso se sitúa en planta baja donde el estudio A-cero propone distribuir la superficie existente en diferentes ambientes: recepción, dos salas de espera independientes, una sala de espera infantil y almacén.

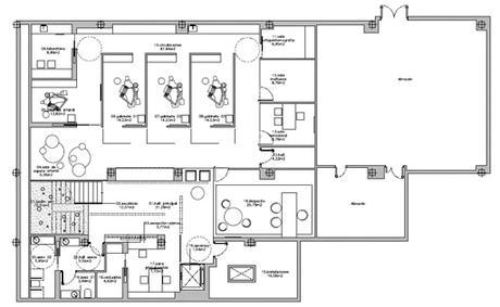
PLANTA SÓTANO
En el nivel inferior encontramos un hall principal, una zona de recepción-administración, una sala de espera infantil y gabineta para niñ@s, tres gabinetes independientes, laboratoria, sala de rayos X, sala de cirugía, hall, despacho, sala de instalaciones, ascensor, despacho de administración, office, dos aseos (uno de ellos adecuado para minusválidos) y un jardín zen.

VISTA EXTERIOR

La fachada se abre al exterior con un paño continuo de vidrio que permite ver las zonas de recepción de la clínica, incluido el adelanto de planta sótano que deja entrever la escalera de acceso.

VISTA INTERIOR PLANTA BAJA

En la planta de acceso, donde se ubica la recepción y las salas de espera, predomina el color blanco en paredes y techo. Los puntos de luz se resuelven con tiras de luz led proyectadas desde los muros escultóricos que sirven como división de los diferentes espacios.

Este nivel se encuentra visualmente comunicado con el exterior gracias a los paños de vidrio, que permiten además la entrada de luz natural.

La monocromía que reina en este nivel se rompe al entrar en la sala de espera infantil, donde se han utilizado diversos colores en los muros para crear un ambiente de juego.

VISTA INTERIOR PLANTA SÓTANO
En planta sótano existe una división entre el propio ambiente de trabajo de la clínica y las zonas de espera y uso administrativo. Predomina igualmente el color blanco en paredes y techo, en contraste con el acabado gris del suelo.

Esta división de los espacios se consigue gracias a un vidrio gris mate donde un pórtico en color negro enmarca los gabinetes que se sitúan tras él. Estos gabinetes se plantean como cajas gris mate numeradas, envueltas por paneles de vidrio azul.

NUEVAS IMÁGENES DE OBRA











