
El estudio de arquitectura de A-cero, liderado por Joaquín Torres, presenta un nuevo proyecto de vivienda uifamiliar ubicado en una exclusiva urbanización madrileña. El cliente adquirió el terreno conjuntamente con una estructura existente, por lo que se ha aprovechado la misma para construir la vivienda. En el próximo post os mostraremos el interiorismo al completo. Cuando finalice la obra, os enseñaremos el proyecto final con toda la documentación gráfica. Se trata de una vivienda dividida en dos niveles, planta sótano y planta baja.
SECCIONES


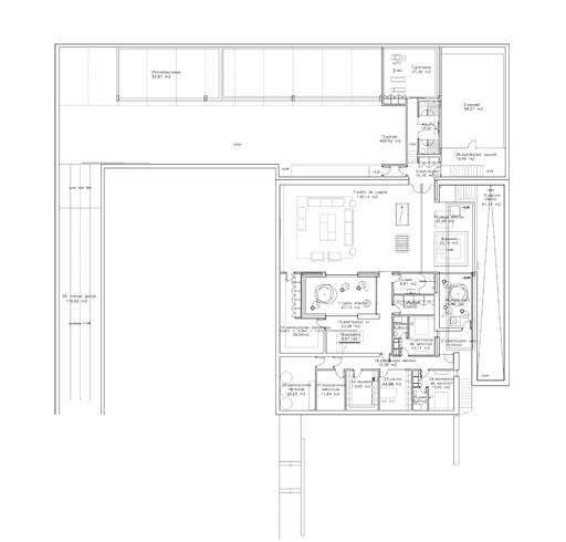
PLANTA SÓTANO
Este nivel se distribuye a lo largo de 1.140m2. En esta planta se han diseñado las zonas deportivas y de relax, tales como la pista de squas de 60m2, gimnasio de 30m2, amplio garaje de 430m2 que dan cabida a 14 vehículos, sala de juegos de 130m2, jacuzzi de 13m2, piscina interior de 62m2, trastero, aseo y baño. En este nivel se sitúa la zona de servicio con 2 dormitorios de 14m2, distribuidor, lavadero y una cocina de 14m2.
Consta de 2 patios interiores que suman un total de 48m2 y rampa de garaje de 110m2.

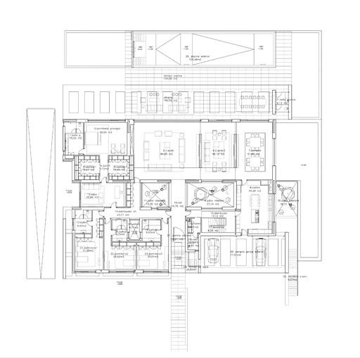
PLANTA BAJA
Este nivel de acceso se ha diseñado para distribuir tanto las zonas más comunes de la vivienda como las más íntimas, a lo largo de 600m2. En el se sitúan 2 amplios salones de 95 y 50m2, cocina de 45m2, y un dormitorio principal en suite con 2 vestidores en un total de 86m2. Se diseña una sala de estr de 26m2, un hall de 16m2, ropero de 4m2. Se sitúan en este nivel 3 dormitorios secundarios en suite de entre 25 y 35m2. Se habilita un espacio de 6m2 como vestidor para la piscina exterior. En los interiores se encuentran 4 patios de entre 4 y 27m2, y una zona de garaje exterior de 77m2. Un porche exterior cubre la zona de entrada acompañado de una lámina de agua de 7m2. Se diseña una terraza de 104m2 para la piscina de 116m2, con una amplia pèrgola que da servicio al porche de 182m2.



Exteriormente la vivienda se caracteriza por su sobriedad estructurada y diseñada en planos de líneas rectas. Se han utilizado colores característicos en el Estudio como son la mezcla del blanco y el negro, y materiales como el marmol travertino y el vidrio negro.

Un amplio porche complementa la zona apergolada, dando servicio a la zona de playa de la piscina.














