
Os presentamos uno de los últimos proyectos residenciales de A-cero. Se trata de un conjunto de seis viviendas unifamiliares situadas en los alrededores de Madrid en una de las zonas más exclusivas de la capital.
Buscando unar diseño, calidad y funcionalidad se han desarrollado esta serie de pareados de aproximadamente 550m2 construidos.



Cada edificiación se ha planificado en cuatro niveles (sótano, planta baja, primera y segunda planta) y cada una incluye su propio jardín exterior y piscina individual.

Se trata de un proyecto muy reciente para el que se han desarrollado cuatro tipologías residenciales. Os mostramos las plantas tipo de uno de los modelos.
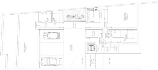
PLANTA SÓTANO

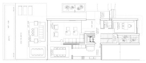
PLANTA BAJA



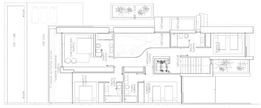
PRIMERA PLANTA



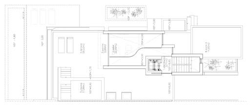
TERRAZA

