
Plano planta baja e implantación
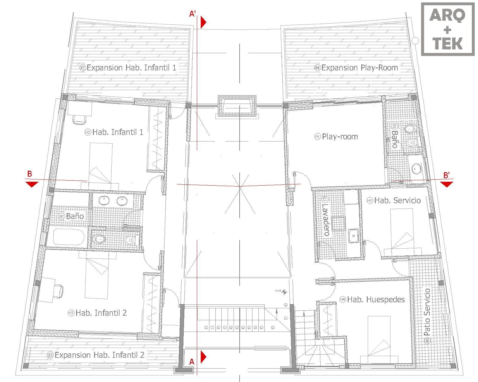
Plano Planta Alta
Corte longitudinal a través del estar
Corte transversal
Vista desde la calle
Render exteriores e interior. Se observa la escalera principal como protagonista del espacio Luego de algunos meses se llego a una versión mas o menos definitiva del proyecto, con lo cual comencé los tramites para obtener el plano municipal aprobado. Dicho tramite finalizó el 27/08/2012 con el consiguiente permiso de obra.
