
Os presentamos uno de los últimos proyectos residenciales de A-cero: una vivienda unifamiliar de 518 m2 situada en el municipio madrileño Boadilla del Monte.
Se trata de una edificación asentada en una parcela independiente de 2000m2 con una ubicación privilegiada, ya que se encuentra rodeada de campo y, al mismo tiempo, se halla a tan sólo 14km del centro de la capital.
Diseño, calidad y funcionalidad son los tres conceptos que han marcado la hoja de ruta en la ejecución de esta vivienda revestida en su totalidad de mármol travertino.



Líneas limpias, volúmenes rotundos y ángulos inesperados definen esta edificación planificada en tres plantas: sótano, bajo y primer nivel.



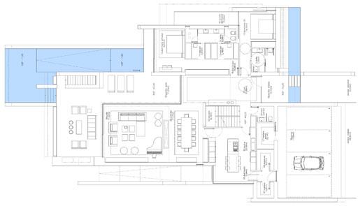
El acceso principal tiene lugar por la planta baja donde se localizan el hall, un aseo de cortesía, el dormitorio principal (que incluye dos vestidores y dos cuartos de baño propios) y las estancias más públicas: salón, comedor y cocina.
PLANTA BAJA


Esta zona se halla abierta a un amplio porche exterior a través de unos grandes ventanales por donde entra la luz natural a raudales refulgiendo en paredes y techos. Una luminosidad que se ve acentuada por el blanco dominante en el interiorismo de la vivienda.

Este nivel también incluye dos trasteros y el garaje.
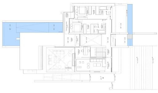
A través de unas escaleras se accede al piso superior donde se encuentra un despacho, una sala de estar y dos dormitorios con baño, vestidor y terraza.
PRIMERA PLANTA

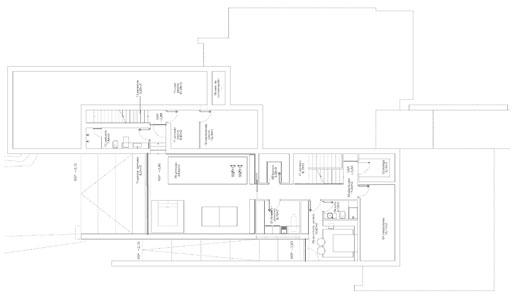
El sótano se ha reservado para el gimnasio, la zona de servicio , una bodega y un almacén.
SÓTANO

En el exterior destaca un amplio jardín con una piscina exterior de 57,28 m2.
Una solución creativa muy potente visualmente que cumple en todo momento con las exigencias de habitalidad y confort que requiere todo proyectos residencial.

