
Hace unos meses os presentamos un proyecto de A-cero para una vivienda unifamiliar de lujo en primera línea de playa de la Costa Brava.
Para realizar el diseño de esta edificación, que ya está en proceso de construcción y que en este post os mostramos las imágenes, A-cero se ha basado en la obra del reconocido arquitecto español Gaudí, especialmente en su famosa “Casa Milà” (Barcelona), cuyas formas orgánicas inspiradas en la naturaleza han servido de inspiración al estudio de arquitectura para realizar este proyecto.
REFERENCIAS

BOCETOS

MAQUETA


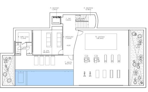
PLANTA SÓTANO -2

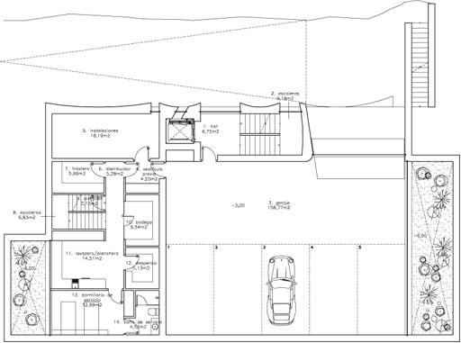
SÓTANO -1

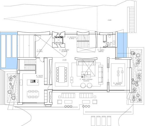
PLANTA BAJA

PLANTA PRIMERA

PLANTA SEGUNDA



Cada uno de sus lados goza de un diseño arquitectónico diferente, de carácter muy marcado y escultórico.



La vivienda ha sido planificada en cinco niveles: dos sótanos y tres plantas. La primera está ocupada por cuatro dormitorios con sus respectivos baños, biblioteca y zona de juegos, mientras que la segunda está dedicada en exclusiva al dormitorio principal que, además de disponer de su propio baño (con jacuzzi), vestidor, cuenta con chimenea y una amplia terraza. En la planta baja se encuentran las zonas más familiares y públicas (salón, comedor, recibidor, cocina, porche…). En los sótanos se localiza las siguientes áreas: piscina interior, spa, gimnasio, sala de cine, bodega, garaje y zona de servicio e instalaciones. Todo ello en una superficie total de 1.500m2.
HALL

SALÓN – COMEDOR

SALA DE DESCANSO

DORMITORIO PRINCIPAL


DORMITORIOS SECUNDARIOS


DORMITORIO INFANTIL

GARAJE

OBRAS





