Aquitectos: RTA Studio, Richard Naish
Ubicación: Auckland, Nueva Zelanda
Área Proyeccto: 1750.0 m2
Año Proyecto: 2009
Fotograafías: Simon Devitt




Descripción de los arquitectos. El encargo pedía dos auditorios, uno más grande (300) que el otro (150), junto con un mayor espacio multifuncional, vestíbulo, sala de exposiciones. Esto condujo a la concepción de 2 respectivamente contrastantes condiciones metafísicas para generar la forma arquitectónica: Relieve y Cielo.
Los “relieves” alberga los dos auditorios. Estas formas geomorfológicas se levantan desde la geología volcánica de la región. El más pequeño de los dos teatros sobresale en relación al otro. Esta forma de cueva ofrece los atributos arquitectónicos necesarios para el control de las condiciones interiores requeridas para la alta tecnología de las aulas audiovisuales.
© Simon Devitt
El “cielo” encierra el espacio multifuncional a través de las nubes que se aferran a la forma del terreno y que cubren la meseta de abajo. Esta serie flotante de techos permite la flexibilidad necesaria de la función, que se produce a modo de paredes operables y disposición de los muebles. La estratificación de los techos en la formación sierras también permite que la luz natural entre en el espacio como el sol entre las nubes.
El edificio pretende dar respuesta a su contexto único y su ubicación en la costa del Pacífico, reconociendo los aspectos locales del sitio y la cultura de Auckland:
La geomorfología del sitio ha evolucionado a partir de eventos únicos, tanto volcánicos como, posteriormente, sedimentarios y metamórficos. Esto ha dejado un cifrado geológico que se ve en la estratificación de la forma del terreno circundante.
© Simon Devitt
Auckland tiene una de las ocupaciones más grandes y diversas de polinesios del mundo. El tatuaje es común a toda esta cultura, lo que puede ser visto en una sección transversal de personas que viven en Auckland.
Este campus tiene un enfoque de Salud en su programa de educación. El ADN es elcifrado genético, la “piedra angular” de la anatomía humana.
El edificio utiliza una serie de principios ecológicamente sostenibles: la ventilación en modo mixto, losetas de reciclado, la acumulación de aguas pluviales, luminarias de bajo consumo, el diseño solar pasivo y materiales de baja energía incorporados al diseño.
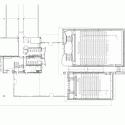
Planta

- © Simon Devitt

- © Simon Devitt

- © Simon Devitt

- © Simon Devitt

- © Simon Devitt

- Planta

- Elevación
Cita:”Teatro de Conferencias AUT / RTA Studio” 16 Sep 2013. Plataforma Arquitectura. Accesado el 16 Sep 2013. <http://www.plataformaarquitectura.cl/292911>







