Revista Creaciones

Boxhome

Por Lorenaortega @elbureau
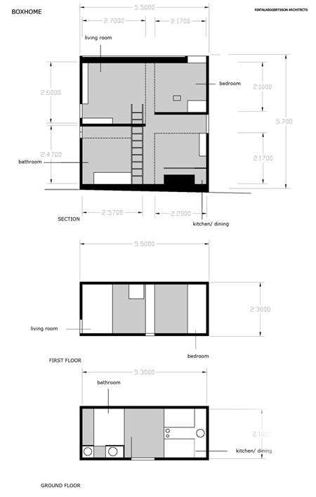
Una cabaña urbana. 19 metros cuadrados en dos plantas. Duro por fuera, cálido por dentro. Una vivienda práctica encajada al milímetro.
Una solución de Rintala Eggertsson.
BOXHOME
BOXHOME
BOXHOME
BOXHOME  
BOXHOME
BOXHOME
BOXHOME
BOXHOME

Volver a la Portada de Logo Paperblog