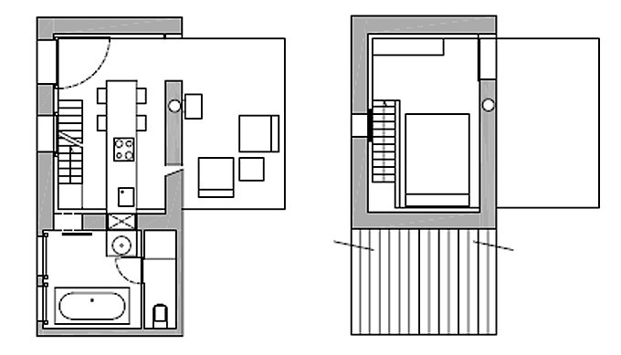
El que más o el que menos en sus familias se han encontrado con un terreno con una caseta de herramientas que si hubiera sido más grande o la legislación lo permitiera se hubiera transformado en una casa de campo para disfrutar con la familia. Supongo que este proyecto sería algo similar a una casa de herramientas o incluso de almacenaje de algún fruto del campo y se ha transformado en un lugar de escape y desconexión muy acogedor.








Via: Archispace
