(fotos en color: Jaume Prat, febrero 2011, fotos en blanco ynegro: Michael Carapetian, extraídas del libro The Charged Void)

Este artículo quiererecoger mis impresiones sobre la arquitectura del edificio de the Economist, deAlison y Peter Smithson, maduradas durante el interludio entre la visita y laescritura. Quisiera ceñirmeestrictamente a la visita, pero es imposible no tener en cuenta toda lainformación que tengo sobre el edificio, tanto previa como posterior. Tambiénlo es obviar que se trata de uno de los edificios mejor fotografiados del sigloXX, singularmente a través de la sesión que el arquitecto y fotógrafo MichaelCarapetian hizo poco después de su inauguración, a principios de los sesenta: laconstrucción del edificio termina en 1959, pero los créditos del edificiomantienen las tareas de los Smithson hasta 1964. Ignoro por qué. La visita no se hizoal edificio original: no existe. En 1985, 21 años más tarde de la fecha que loscréditos marcan como el final de la intervención de los arquitectos, PeterSmithson realiza una reforma importante. En el libro The Charged Void se ciñeesta reforma a la entrada de la torre de oficinas. Hay, pero, dos alteracionessignificativas más. Muy significativas. Su calidad hace pensar que tambiénpueden ser obra de Peter Smithson, que jamás se desentendió del edificio. Puedoestar, pero, equivocado. He mantenido losnombres de las calles en inglés, sin traducir, por la situación singular deledificio: el barrio de Westminster en la ciudad de Londres. Londres,singularmente, tiene una nomenclatura de espacios mucho más rica y compleja quela catalana. Muchos de ellos son de difícil traducción, y este artículo sólo vade esto en parte. Sería demasiado largo y demasiado oblicuo ocuparme de estoahora.
Los libros de historiadan como dirección del edificio el 25 de St. James’s. Ocupa dos números más ydos otras calles: Ryder Street, perpendicular a St. James’s, y Bury Street, quedobla St. James’s. Tanto en Bury como en Ryder hay más frente construido.Bastante más. Pero el acceso principal (que no el único) del edificio seproduce por St. James’s, calle que define, también, la cota del espaciointerior.
Acceso des de St. James's. Notad la diferencia de cota entre el espacio interior y la calle, teniendo en cuenta que la foto está tomada desde la cota superior del solar.
Westminster es unbarrio de una riqueza arquitectónica y urbanística excepcional. El edificio seubica en su cuadrante noroeste, vertebrado, precisamente, por St. James’sStreet, de trazado decimonónico superpuesto sin borrarlo a un trazado más antiguo, con partes góticasy todo. Como resultado de esto, San Jaime se lleva, a parte de una calle, unparque, unos Gardens, una Place (que, en realidad es una calle) y un LittleStreet. Otros espacios urbanos de Westminster compartirán patronímico del mismomodo.Esta reflexión no esbanal: nos habla de la complejidad de los espacios que se da a pocos minutos apie del edificio. De unos espacios difíciles de nombrar, difíciles de limitar.Híbridos. Ambiguos. Como los que generará el propio edificio.
Situación. Notar la cantidad y calidad de espacios diferentes en pleno Londres. El edificio, en el cuadrante superior izquierdo. Abajo, el Mall, doblado superiormente por el Pall Mall, que dobla hasta St. James's. En el cuadrante superior derecho, St. James's Square.
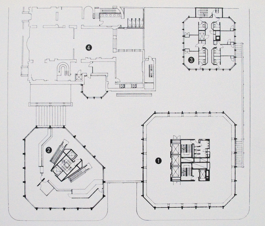
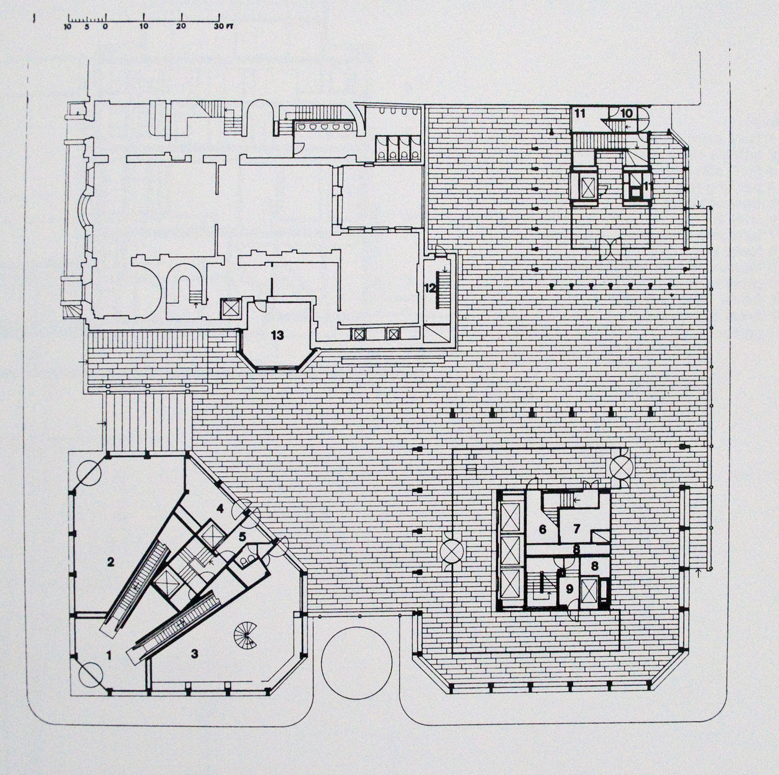
De entrada, el nombre:the Economist Building. El edificio Economist. En realidad cinco piezasdiferentes: una torre de cincuenta y tres metros en la esquina de Bury conRyder, una torre más pequeña sobre Bury, medianera con el edificio de al lado,un edificio difícil de clasificar en la esquina de St. James’s con Ryder, unaintervención en un edificio existente sobre St. James’s (el número 23), y elespacio libre entre ellos. Un espacio libre con grueso, muy complejo.1.- Torre de la redacción de The Economist. 2.- Martin's Bank. 3.- Torrecita de apartamentos del Boodle's Club. 3.- Boodle's Club, con su nueva tribuna hacia el espacio común.
Planta Baja: espacio común, a una cota aproximada de 1,5 metros por encima de St. James's.
Las calles Bury y St.James’s bajan de norte a sur. Y bajan mucho. Y, además, bajan diferente. Ryderabsorbe la diferencia bajando hacia Bury. El espacio libre entreedificios se sitúa a una cota superior, definida por el acceso al complejo, enel 25 de St. James’s. Justo a cota superior del solar. Sobre esta cota superiorel espacio sube todavía más, un buen metro y medio. De modo que, sobre Ryder ysobre Bury, el espacio entre edificios es casi un primer piso. O primer piso ymedio. De modo que el zócalo del edificio es tan potente que posibilita quecuatro edificios perfectamente diferentes entre ellos reciban el nombre comúnde edificio Economist. Será precisamente estezócalo el objeto de la reforma importante de 1985: cuando el edificio seproyecta y construye, todo el frente a la calle Bury se ocupa por un sistema deescaleras paralelo a la calle: dos escaleras que definen una pared contra Bury.El zócalo reformado: Comparad con las plantas; la escalera paralela no existe, el espacio comercial se amplía. Más tensión sobre Bury Street.
Actualmente se da unasola y única escalinata perpendicular a Bury, alineada con el acceso de St.James’s. El zócalo resultante puede ser ocupado por tiendas. Bury Street esconocida por tener algunas de las galerías de arte más importantes de laciudad, y este zócalo comercial recibirá otra.El zócalo del Martin's Bank funcinando como galería de arte. Perspectiva de trabajo del estudio.
La génesis del encargoes el permiso que el Ayuntamiento de Londres da a los promotores, el periódicoThe Economist, para derribar su sede decimonónica (que llenaba toda la parcela)y construirla de nuevo. El encargo recae sobre Alison y Peter Smithson, a losque se pide un incremento de edificabilidad importante y un programa bastantecomplejo: la reforma de un club, el Boodle’s Club,habitaciones o apartamentos ligadas a dicho club, un banco, la redacción delperiódico. Fieles a los postulados del Movimiento Moderno, los arquitectoszonificarán el programa y lo partirán en tres edificios completamentediferentes: el banco (Martin’s Bank) sobre St. James’s, la redacción sobreRyder y Bury, los apartamentos sobre Bury. Los edificios tendrán cuatrovientos, excepto los apartamentos, que sólo tendrán tres. A la finca del numero23 de St. James’s, que aloja el club, se le hará una nueva fachada sobre elespacio público que aglutina toda la intervención.
Los cuatro edificiosse buscan y complementan entre ellos. La plaza los unifica y cohesiona.

Fotomontaje realizado por el estudio.
Todo el trabajoposterior tendrá por objeto definir el espacio entre edificios (que recibirá elnombre de “plaza”, a convivir con todos los Mall, Yard, Court, Road, Square,Garden, Passage existentes en la zona) y afinar y singularizar cada parte de laintervención. Fieles al autismo alcontexto que el Movimiento Moderno impone a sus edificios, todas las fachadasdel edificio (ha quedado demostrado que es un solo y único edificio),independientemente de su orientación, tienen el mismo carácter, el mismo tipode ventana, el mismo modo de ser compuestas. Con esto se huye de la tradiciónde las fachadas delanteras y traseras, que el Movimiento Moderno siempre hacriticado. Injustamente, encuentro. El problema no ha sido jamás que hayafachadas anteriores y posteriores en los edificios. El problema ha sido,siempre, diseñar bien ambas fachadas. Londres es un lugar excelente dondeencontrar buenas fachadas posteriores, bien diseñadas, ricas, con solucionesarquitectónicas que no se ha querido que quepan en las fachadas anteriores, tanbuenas como estas últimas. O más.En todo caso, eledificio gira todas las fachadas exactamente del mismo modo. El edificio quiereincorporar el espacio interior a la calle. Cosa que hace y no hace a la vez. Eledificio gira, sus fachadas se extienden, la manzana queda abierta. Pero lapotencia del zócalo impide cualquier otra lectura que no sea la del edificiounitario con fachada, con mucha fachada. Cosa que tiene la virtud de dejar lascalles tranquilas: St. James’s tiene, tan sólo, una buena entrada y despuésrecupera el volumen. La presión sobre Bury y Ryder se mantiene intacta.

Segunda derivada: laclave para entender el proyecto. El emplazamiento de los edificios está en lasesquinas de solar. Le Corbusier o Mies van der Rohe jamás lo hicieron. Elespacio moderno es fluido. El espacio moderno es uno. Para todo el mundo. ElMovimiento Moderno no crea espacios. Crea espacio. En singular. Un únicoespacio transparente, diáfano. Único. Perfectamente iluminado, sin apenasrincones, excepto para la intimidad mínima. Las puertas se disponen más paratemas engorrosos tales como límites de propiedad que para acotar nada. Décadasantes del espacio basura koolhaasiano, este ya ha sido postulado y trabajadopor los popes del Movimiento Moderno. Con la única excusa de la belleza.
Los Smithson noquieren nada de esto. La plaza es un recinto acotado al que cuesta acceder. Elpropio edificio acota un espacio, inequívocamente. Sin paliativos. Sin ningunaduda. Lo marcan las esquinas, se ancla el edificio a la parcela y la manzanaqueda tan sólo reventada por el medio, partida en dos por un espacio público sinnombre al que difícilmente accederemos si no es para hacer alguna actividadligada al interior del edificio: tanto mis fotos como las de MichaelCarapetian, separadas las dos sesiones casi cincuenta años muestran gente depaso: trabajadores de las oficinas, algún transeúnte de paso: nade está allídentro. El espacio es un pasaje con rincones, con una plasticidad nada urbanaque Carapetian asocia de manera directa y franca a las pinturas de De Chirico yque yo preferí caracterizar a través de unas fachadas superiores anónimas,vacías de personas, caracterizadas por una materialidad y una belleza casi enbruto como si nos encontrásemos dentro de una escultura gigante. El espaciointerior también tiene algo de yard, de court, de patio privado inglés, secreto,bien definido, alejado de la calle. Con balcones y todo. Ídem los espaciosinteriores: no tiene nada de centrífugos. Su relación tan franca con elexterior no tiene otro motivo que iluminarlos francamente. El anonimato de susfachadas tranquiliza el interior: la singularidad se consigue por zonificación.También (como se ha visto a posteriori) la flexibilidad del edificio.

Excepcional foto de Michael Carapetian (deformada por haber estado sacada de un libro) donde se aprecia el altísimo grado de abstracción usado para proyectar el espacio intermedio de los edificios, casi onírico. Nadie se queda: todos pasan sin pararse.

Las torres en lasesquinas impiden, también, las visiones diagonales. El espacio no se verá nuncaen verdadera magnitud: tampoco en ninguno de los edificios que lo rodean.Algunos de ello de calidad notable, por cierto. Y definen la calle a laperfección, sin alterar lo más mínimo la configuración urbana. Avanzandoacontecimientos las dos plantas inferiores del banco son ahora un restaurantejaponés. Éste niega completamente el acceso desde el espacio interior y lovolca a la calle. Tanto que la cocina queda perfectamente visible… contra elpatio de manzana. Los clientes se relacionan con St. James’s: la torreta haquedado segregada del resto de la intervención.
Más sobre el espaciomoderno: su inabarcabilidad, su promiscuidad incómoda, obscena, queda definidapor su representación: una retícula estructural que organiza idealmente todoslos elementos constructivos presentes en la intervención: de edificios amobiliario urbano, aparcamiento, carreteras, líneas de flujo, etcétera: no sequiere nada contingente. Todo es necesario. El edificio de theEconomist tiene un módulo estructural diferente para cada torre: adecuado a St.James’s en el banco, más reducido en la torre pequeña, mayo en la más grande.Pequeñas diferencias que no hablan de economía: hablan de la finura de lacomposición y hablan de la composición independiente de cada uno de loselementos que forman el edificio, atentos, sensibles a los detalles. Un móduloestructural que configura, se estrella y termina contra la fachada de cadaelemento. La estructura de soporte de la plaza quedará forzada con nuevos módulosintermedios que encajen entre los otros.
El edificio no hacreado escuela. El centro incluso la City o un Downtown a la americana comoCanary Wharf, en el Londres moderno, se han visto poblados por edificios máspintorescos, más referenciales al pasado. Cuando se han construido edificios delenguaje más abiertamente moderno (como un centro comercial de Jean Nouvel allado de la Catedral de San Pablo, o el edificio Channel Four de lord Rogers, sutrazado, su huella en planta, son abiertamente decimonónicos: el programa seencaja, sin esfuerzo, con éxito, contra el perímetro de la parcela, haciendocalle. Una de las razones deeste fracaso puede ser la indiferencia con que los arquitectos aceptan que suplanteo volumétrico está fuera de escala: la torre de la redacción, en laesquina de Bury con Ryder, de cincuenta y tres metros de altura es,sencillamente, demasiado alta. De hecho es perfectamente visible des delPalacio de Buckingham como un excrecencia extraña por encima de la línea decornisa uniforme que define Westminster. No es que el edificio no quepa: es quelos arquitectos han hecho trampas. La huella elegante en planta, el diseñoexquisito, escenográfico, de la fachada a St. James’s se pierde completamenteen Bury y en Ryder, calles (sobretodo Bury) armoniosas, bien tensadas,paseables, que pierden intensidad precisamente en la torre de redacción. Másteniendo en cuenta que Bury se entrega contra el Pall Mall a través del CrownPassage, una calle peatonalizada llena de vida y de comercio donde convergenbuena parte de los trabajadores de la zona. La torre de la redacción es laherida por donde sangra el edificio de The Economist. Con veinte metros menosde altura estaríamos hablando de un edificio que habría creado escuela.




Foto de obra: el forro del pilar, con su fijación antivuelco (mismo modelo que las usadas hoy en día), los forros de aluminio protegiendo la junta entre el panel de hormigón de fachada y el pilar real, armado con una cuantía muy baja.


Módulo de alzado: tramado, el aluminio, creando una trama aparentemente estructural que sólo revela su carácter de forro al no tocar el suelo. Las partes de hormigón siempre están separadas entre ellas. Ilusión de estructura metálica.
Detalle exquisito yambiguo: el edificio es de hormigón forrado con hormigón, jugando a ser unedificio metálico, ya que todos los elementos de hormigón al exterior quedanenmarcados por los perfiles de aluminio antes mencionados. Los cristales del bancoson capítulo aparte. El año de finalización de la construcción es 1964. LosSmithson son unos maestros absolutos dando la dimensión precisa a cada elementoconstructivo (de aquí mi desconcierto con la altura de la torre de redacción).Cada vano estructural, cada forro, cada carpintería, están diseñados a laperfección. Todo tiene medidas precisas, proporciones exquisitamente cuidadas.Se hace necesario singularizar el banco… y lo hacen sacando la carpintería delvano. Cristal solo. Entero. La dimensión de los cristales del primer piso del bancopuede llegar a los dieciocho metros cuadrados, más o menos. Y estamos a 1964.Con un solo cristal.
Primera planta del banco contra el espacio interior, ahora la cocina de un restaurante japonés: atención a la dimensión enorme de los cristales, originales junto con las carpinterías y todo el módulo. En los dos pisos superiores estaban partidas, pero ahora sólo se conservan así en los chaflanes. Más detalles, comparad las fotos de Michael Carapetian y las mías.
La estructura de losedificios forma otro detalle exquisito, muestra del virtuosismo de los arquitectos:los pilares que soportan el edificio tienen, dentro de su huella en planta, unasección constante. En cualquier edificio en altura (banco incluido) los pilaresvan perdiendo sección en las plantas superiores, donde soportan menos carga: nohacerlo (como se ha hecho en muchos edificios) supone un incremento de materialinnecesario. El regrueso necesario para soportar las plantas inferiores se sacafuera del edificio y, por tanto el forro de los pilares, de sección constante, vasaliendo del edificio, formando una especie de pirámide muy sutil. El efectorompe, de un modo casi imperceptible, la monotonía de los edificios en altura:la vista, si no está adiestrada expresamente, no lo capta de un modoconsciente, pero un cierto factor de inestabilidad afecta a nuestra mirada,advirtiéndonos que algo especial está sucediendo.

Una de mis fotos de arquitectura preferidas, en cualquier edificio. Se puede ver perfectamente el cambio de sección de los pilares del banco. El resto, puro contexto.
El hormigónprefabricado ha envejecido bien. Perfectamente, de hecho, cosa que habla,también, del dimensionamiento de su armado, una cuantía tan mínima que no haafectado su recubrimiento. De aquí que se pueda afirmar que el edificio estámejor que nuevo: se patinó.


Stirling & Wilford: Viviendas en Carlton Gardens. Finales de los 90. Construcción casi mimética con el entorno en un edificio que sigue la huella de su parcela. Nivel altísimo, tics postmodernos y alzados miméticos en una arquitectura que tiene una segunda y una tercera revisión.

Plano de situación con tres piezas arquitectónicas remarcables: The Economist Building, el edificio de los Carlton Gardens de Stirling & Wilford y, dando al Mall, la casa Malborough de Wren, de construcción previa al propio Mall: el jardinero del rey podía pedirle la pala, medianera por medianera, al del duque (de nombre John Churchil: su descendiente ilustre escribió una biografía suya en varios volúmenes). La urbanización y ampliación son posteriores.
Alison y PeterSmithson no son modernos: representan la modernidad, experimentan y juegan conella. Los arquitectos han puesto en crisis el Movimiento Moderno preguntándosesobre él. La respuesta es este mismo edificio, que triunfa como pieza de arquitecturaen la misma medida en que fracasa como manifiesto, que se integra en la ciudad,al servicio de unos clientes exigentes y valientes que aceptan que el edificio,la arquitectura, la ciudad, reciban su fuerza, su riqueza, su complejidad, suexpresión, a través de sus contradicciones.






